凭证苏州市相城高新区(元和街道)陆慕菜市场公益性刷新事情要求,,,,,,,,现将陆慕菜市场商位招商通告通知如下:
一、 项目信息
2020年6月苏州市农产品生长有限公司与苏州相城高新控股集团有限公司签署了《相城高新区农贸市场公益性相助协议》,,,,,,,,依据协议精神,,,,,,,,为增进苏州相城高新区农贸市场公益性刷新历程,,,,,,,,知足辖区住民对菜品质优价廉的需求和一样平常生涯服务需求,,,,,,,,提升街道住民的生涯品质,,,,,,,,决议建设合资公司苏州农元市场谋划管理有限公司。。。。。。相城高新区(元和街道)委托其对陆慕农贸市场举行招商运营管理,,,,,,,,市场刷新面积约9400㎡,,,,,,,,提质升级后实现消耗场景恬静化、生意信息实时化、计量羁系标准化、食物泉源可溯化、菜品价钱透明化的“菜市场+配套农贸品牌+社区功效服务”新型农贸市场
二、招商业态规模
蔬菜类、冻品、净菜、水果、冰鲜、水产、海鲜、水发、熟食类、特色小食、品牌猪肉、牛羊肉、光禽、商业配套品牌店及其他特色农贸类业态,,,,,,,,详见附件一、二。。。。。。
三、 招商选位流程
1.提交报名质料
本招商通告宣布时间为2021年7月2日至2021年7月15日。。。。。。意向商户在通告宣布时代向我司提交相关质料(质料清单详见附件),,,,,,,,质料提交所在为苏州市相城区阳澄湖中路18号,,,,,,,,陆慕农贸市场东侧管理办公室182室(吸收于逐日早9点至晚17点举行)。。。。。。
2.资格审核
我司将于通告竣事之日起3个事情日内,,,,,,,,将意向商户提交的质料举行审核评审,,,,,,,,凭证农贸市场公益性刷新招商要求“让老黎民得实惠”为焦点,,,,,,,,筛选出切合条件的意向商户。。。。。。
3.评审通过
资格审核效果将于2021年7月23日前举行公示,,,,,,,,通过资格审核的意向商户,,,,,,,,我司将以电话或短信等形式通知其在指准时间内缴纳选位包管金后,,,,,,,,意向商户获得选位资格。。。。。。
4.竞租选位
我司将组织获得选位资格的意向商户通过竞租或商业谈判的形式加入选位。。。。。。
5.签约交款
选位乐成的意向商户应在指准时间内与我司签约,,,,,,,,缴纳租金。。。。。。关于未选位乐成的意向商户,,,,,,,,我司将统一无息退还选位包管金。。。。。。
苏州农元市场谋划管理有限公司
2021年7月1日
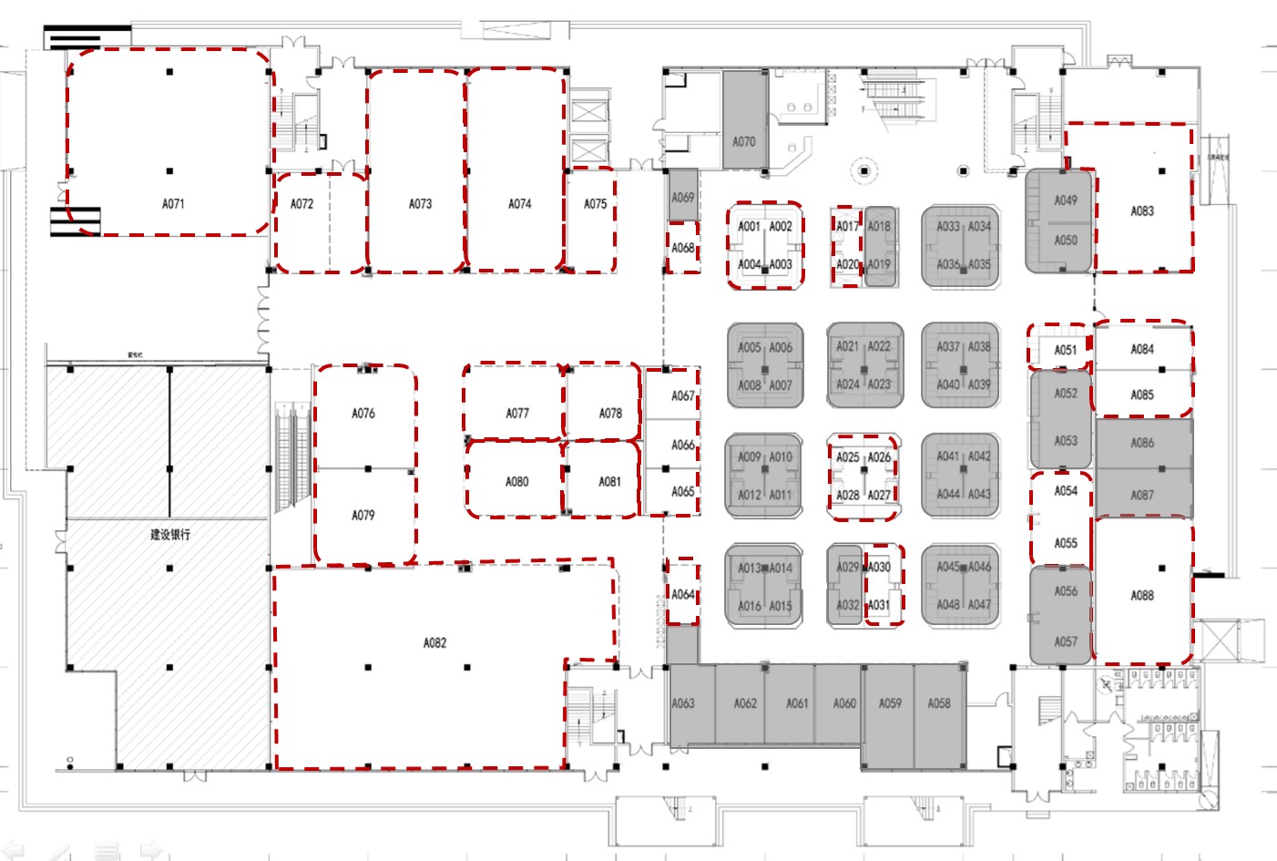
附件一

一楼平面图(红色虚线框标注部分为招商商位)

二楼平面图(红色虚线框标注部分为招商商位)
注:图纸内虚线框部分为招商商位,,,,,,,,其中摊岛型商位凭证位置差别,,,,,,,,展示面宽约为3.6-8.25米,,,,,,,,铺面商位面积段约为19-430平米。。。。。。
附件二
|
摊位号 |
业态 |
面积(㎡) |
|
A01 |
一楼生鲜 |
10.2 |
|
A02 |
一楼生鲜 |
10.2 |
|
A03 |
一楼生鲜 |
10.2 |
|
A04 |
一楼生鲜 |
10.2 |
|
A17 |
一楼生鲜 |
9.1 |
|
A20 |
一楼生鲜 |
9.1 |
|
A25 |
一楼生鲜 |
10.2 |
|
A26 |
一楼生鲜 |
10.2 |
|
A27 |
一楼生鲜 |
10.2 |
|
A28 |
一楼生鲜 |
10.2 |
|
A30 |
一楼生鲜 |
10.2 |
|
A31 |
一楼生鲜 |
10.2 |
|
A51 |
一楼生鲜 |
16.89 |
|
A54 |
一楼生鲜 |
18.4 |
|
A55 |
一楼生鲜 |
18.4 |
|
A64 |
一楼农贸品牌 |
13.72 |
|
A65 |
一楼农贸品牌 |
16.87 |
|
A66 |
一楼农贸品牌 |
18 |
|
A67 |
一楼农贸品牌 |
19.12 |
|
A68 |
一楼农贸品牌 |
11.9 |
|
A71+B120 |
24小时本土特色餐饮 |
485.56 |
|
A72 |
一楼农贸品牌 |
66 |
|
A73 |
一楼农贸品牌 |
132 |
|
A74 |
一楼农贸品牌 |
132 |
|
A75 |
一楼农贸品牌 |
38.6 |
|
A76 |
一楼农贸品牌 |
67.85 |
|
A77 |
一楼农贸品牌 |
49.5 |
|
A78 |
一楼农贸品牌 |
37.8 |
|
A79 |
一楼农贸品牌 |
66 |
|
A80 |
一楼农贸品牌 |
49.29 |
|
A81 |
一楼农贸品牌 |
37.8 |
|
A82 |
一楼农贸品牌 |
431.02 |
|
A83 |
一楼农贸品牌 |
113.43 |
|
A84 |
一楼农贸品牌 |
29.89 |
|
A85 |
一楼农贸品牌 |
33.68 |
|
A88 |
一楼农贸品牌 |
101.04 |
|
B049 |
二楼生鲜 |
11.10 |
|
B050 |
二楼生鲜 |
11.10 |
|
B051 |
二楼生鲜 |
11.10 |
|
B052 |
二楼生鲜 |
11.10 |
|
B053 |
二楼生鲜 |
11.10 |
|
B054 |
二楼生鲜 |
11.10 |
|
B055 |
二楼生鲜 |
11.10 |
|
B056 |
二楼生鲜 |
11.10 |
|
B061 |
二楼生鲜 |
11.10 |
|
B064 |
二楼生鲜 |
11.10 |
|
B065 |
二楼生鲜 |
11.10 |
|
B066 |
二楼生鲜 |
11.10 |
|
B067 |
二楼生鲜 |
11.10 |
|
B068 |
二楼生鲜 |
11.10 |
|
B081 |
二楼生鲜 |
11.10 |
|
B082 |
二楼生鲜 |
11.10 |
|
B083 |
二楼生鲜 |
11.10 |
|
B084 |
二楼生鲜 |
11.10 |
|
B085 |
二楼生鲜 |
11.10 |
|
B086 |
二楼生鲜 |
11.10 |
|
B111 |
二楼农贸品牌 |
19.13 |
|
B112 |
二楼农贸品牌 |
19.33 |
|
B122 |
二楼农贸品牌 |
37.43 |
|
B123 |
二楼农贸品牌 |
34.42 |
|
B124 |
二楼农贸品牌 |
34.42 |
|
B125 |
二楼农贸品牌 |
34.42 |
|
B126 |
二楼农贸品牌 |
34.42 |
|
B127 |
二楼农贸品牌 |
34.42 |
|
B128 |
二楼农贸品牌 |
179.78 |
|
B129 |
二楼农贸品牌 |
33.53 |
|
B130 |
二楼农贸品牌 |
36.02 |
附件三
陆慕菜市场商户质料清单
一、基础质料
身份证、暂住证(非外地户口)、陆慕菜市场招商报名挂号表(详见附表)
二、诚信及履约能力质料
小我私家征信报告及其他征信质料(包括但不限于芝麻信用,,,,,,,,腾讯征信等)、不动产权证书、允许书(市场方提供现场签)
三、谋划类质料
1.条约及凭证:一连两年的租赁条约(包括谋划园地租赁条约、客栈租赁条约、办公衡宇租赁条约、莳植养殖基地土地租赁条约等)、供销条约、供销凭证等可以证实谋划规模的相关质料;;;;;
2.证照:营业执照、食物流通允许证、运输谋划允许证等可以证实正当谋划的相关证照;;;;;
3.品牌:自主品牌注册商标认证书、品牌使用授权书(品牌方对入驻陆慕菜市场谋划的授权质料);;;;;
4.谋划效果:2020年度销售流水、基地或供应商或品牌方提供的年度产品销售总量证实、现在自有连锁店数目(提供每家门店的营业执照和租赁条约)、配送服务单位的数目(提供每家服务单位的相助条约);;;;;
5.谋划示意图:产品谋划货柜及设施装备示意图、产品工艺流程示意图(涉及现场加工类)、门店VI、价钱牌等谋划细节效果展示图等现场展示的相关资料。。。。。。
四、竞争力说明
1.形象:包括现在谋划门店的照片、对本市场谋划商位的效果图以及统一的品牌店面形象、LOGO展示;;;;;
2.产品:销售产品清单及相关先容说明;;;;;
3.声誉:行业内获奖证书及其他有公信力的质料证实、有影响力的官方媒体报道等证实质料。。。。。。
注:
1.上述质料请提供原件及复印件一份,,,,,,,,现场审核事后将原件返还,,,,,,,,如涉及图片的请打印图片。。。。。。
2.上述质料主体是直系支属的,,,,,,,,需提供关系证实(如完婚证、户口本)。。。。。。
附表:
|
陆慕菜市场招商报名挂号表 |
|||||||||||||||||||||
|
业态 |
品牌 |
|
报名日期 |
|
|||||||||||||||||
|
报名商户基本信息 |
|||||||||||||||||||||
|
姓名 |
|
性别 |
|
籍贯 |
|
联系方法 |
|
||||||||||||||
|
身份证号 |
|
现栖身地点 |
|
||||||||||||||||||
|
本市场谋划准备信息 |
|||||||||||||||||||||
|
谋划 方法 |
□亲自谋划 □直营 □联营 □加盟 □委托谋划 □雇佣谋划 □其他 |
||||||||||||||||||||
|
谋划 人数 |
|
商位性子 |
□门面 □摊位 |
面积 |
|
||||||||||||||||
|
加入 谋划 |
姓名 |
|
与自己关系 |
|
身份证号 |
|
|||||||||||||||
|
姓名 |
|
与自己关系 |
|
身份证号 |
|
||||||||||||||||
|
姓名 |
|
与自己关系 |
|
身份证号 |
|
||||||||||||||||
|
自我推荐归纳 |
|||||||||||||||||||||
|
小我私家 |
提醒:什么时间最先,,,,,,,,从事过什么行业或业态。。。。。。
|
||||||||||||||||||||
|
货源 |
提醒:从什么地方进货或货源组织的方法。。。。。。 |
||||||||||||||||||||
|
加入 |
提醒:是否有过与行业或市场同步提升的履历,,,,,,,,或是否在谋划历程中举行过自我提升、什么缘故原由下举行提升。。。。。。
|
||||||||||||||||||||
|
一经 |
提醒:在行业内获得过的声誉、奖励等情形。。。。。。
|
||||||||||||||||||||
|
对所 |
提醒:对从事过的行业或业态的剖析,,,,,,,,已往、现在与未来的形貌。。。。。。
|
||||||||||||||||||||
|
具备 |
提醒:形貌并提供尽可能多的优势证实质料。。。。。。 |
||||||||||||||||||||
|
1.货源 |
|
||||||||||||||||||||
|
2.营业量 |
|
||||||||||||||||||||
|
3.诚信 履约 |
|
||||||||||||||||||||
|
4.品牌 连锁 |
|
||||||||||||||||||||
|
5.装修 设计 |
|
||||||||||||||||||||
|
6.谋划 团队 |
|
||||||||||||||||||||
|
7.供应链 |
|
||||||||||||||||||||
|
|
8.平抑 菜价 |
|
|||||||||||||||||||
|
|
9.项目 管理 |
|
|||||||||||||||||||
下一篇:万融国际大厦租赁招标通告